物件概要
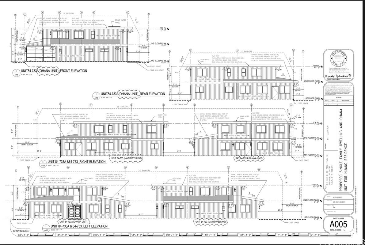
この魅力的なビーチループのロケーションに、夢のマイホームを建てましょう!広々とした10,500平方フィートの土地は完全に整地されており、美しいビーチまで徒歩圏内。息を呑むような夕日と美しい山々の景色をお楽しみいただけます。静かな住宅街に囲まれたこの土地は、多世代同居に最適です。現在、2つの独立した住居の計画と許可申請が進行中です。水道メーターは既に設置済みで、架空電気配線も可能なので、理想の家族の隠れ家づくりを始める準備は万端です。
※自動翻訳のため表現が適切でない場合がございます。
(原文)
Build your dream home in this desirable beach-loop location! This spacious 10,500 square foot lot is fully cleared and just footsteps away from a gorgeous beach, offering stunning sunsets and lovely mountain views. Nestled in a quiet neighborhood, it’s perfect for multi-generational living, with plans and permits in progress for two separate dwellings. With the water meter already installed and overhead electrical available, you’re ready to start building your ideal family retreat.


