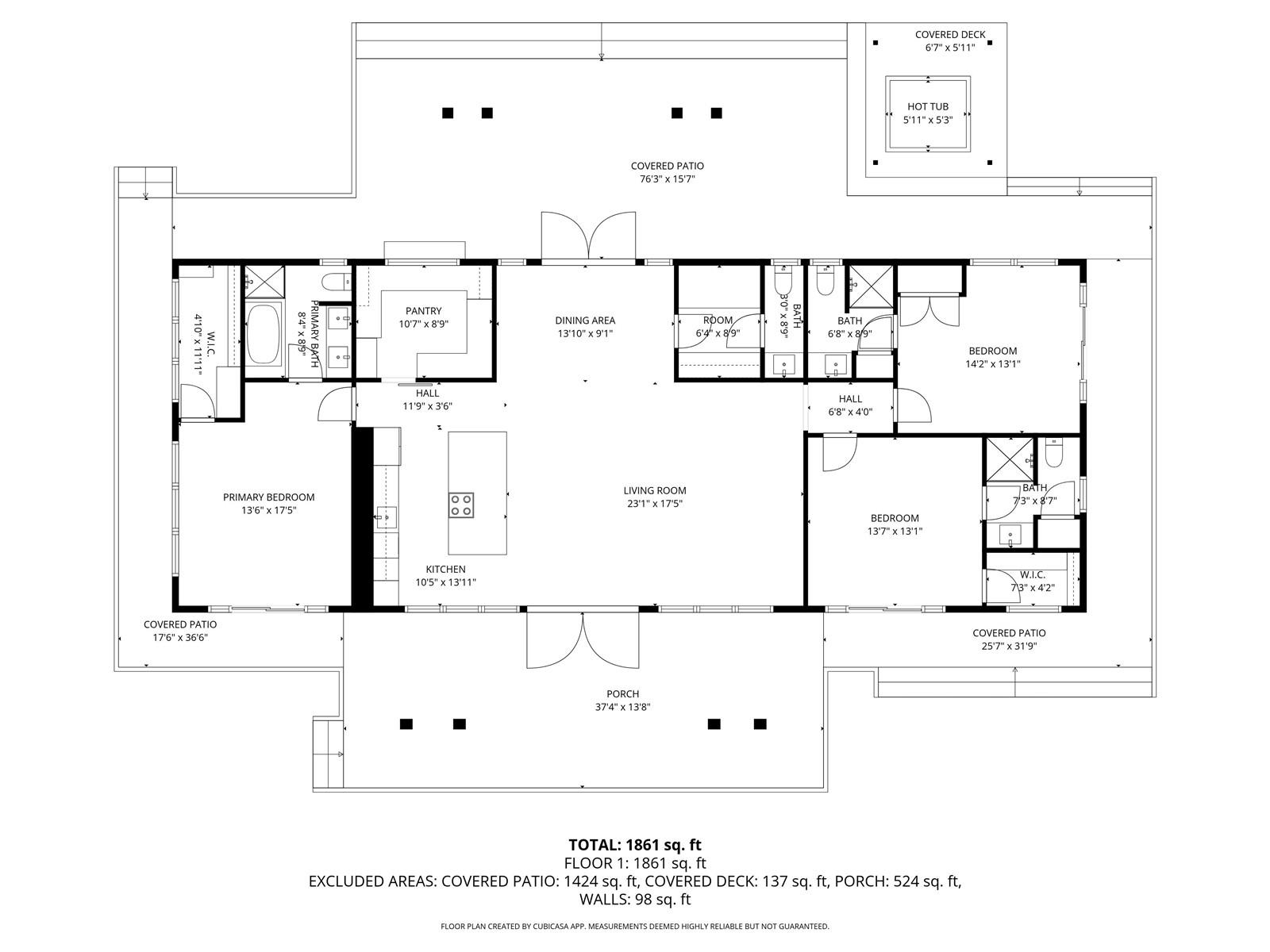
物件概要
象徴的なラニカイビーチからわずか1ブロックに位置するこの高級リトリートは、2025年に全面改装され、時代を超えたエレガンスと最先端のデザインが融合しています。コンクリートとスチールの建物に、ハリケーン耐性のマーヴィンドアとスチールトラスを採用し、抜群の強度とスタイルを実現しています。高い天井、デザイナー仕上げ、そしてガラスの壁が、風通しの良い明るい空間を演出しています。グルメキッチンには高級家電と特注キャビネットが備えられ、広々としたリビングとダイニングエリアにシームレスにつながっています。3つの広々とした専用バスルーム付きベッドルームはプライバシーと快適さを提供し、4つ目のパウダールームにはランドリールームが併設されています。1,200平方フィートを超える屋根付きの屋外リビングは、緑豊かなトロピカルランドスケープと特注のホットタブに囲まれ、一年中楽しめます。思慮深く厳選された照明、高級な備品、そしてエンジニアードハードウッドフロアがインテリアの格を高めています。スマートホーム統合により、空調、セキュリティ、照明を簡単に制御できます。モクルア諸島の日の出の眺め、プライベートヤードで味わう夕日のカクテル、そしてハワイ屈指の高級ビーチサイドコミュニティの静寂をお楽しみください。専用オートコートも完備し、この希少なモダンアイランドラグジュアリーをさらに引き立てます。
※自動翻訳のため表現が適切でない場合がございます。
(原文)
Just one block from iconic Lanikai Beach, this 2025 fully remodeled luxury retreat pairs timeless elegance with cutting-edge design. Built from concrete and steel with hurricane-rated Marvin doors and steel trusses, it offers exceptional strength and style. Inside, soaring ceilings, designer finishes, and walls of glass create an airy, light-filled sanctuary. The gourmet kitchen features premium appliances, custom cabinetry, and flows seamlessly into expansive living and dining areas. Three generous ensuite bedrooms offer privacy and comfort, complemented by a fourth powder room with integrated laundry. Over 1,200 sq. ft. of covered outdoor living invites year-round enjoyment, framed by lush tropical landscaping and a custom-built hot tub. Thoughtfully curated lighting, high-end fixtures, and engineered hardwood floors elevate the interiors. Smart home integration offers effortless control of climate, security, and lighting. Enjoy sunrise views of the Mokulua Islands, sunset cocktails in your private yard, and the serenity of one of Hawaii’s most prestigious beachside communities. A private auto court completes this rare offering of modern island luxury.


