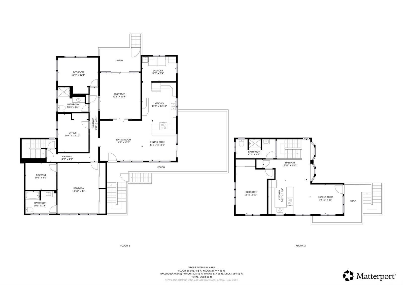
物件概要
すぐに入居できる価格!絵のように美しいカアアワの静かな海岸沿いの美しさの中で、息を呑むような日の出とともに毎日を始めましょう。絶好のロケーションに理想的なこの広々とした住宅は、投資収益を最大化する無限の機会を提供します。約11,032平方フィートの土地を備えたR-5ゾーニングで、可能性を探求する準備ができています。すぐに賃貸に出せる構成で、投資家、多世代同居、ゲスト、リモートプロフェッショナル、学生、インターンシップ、客員教授の長期滞在用住宅として住み込みのホスト、コリビングの手配などに最適です。複数のリビングルームとラナイデッキを備えた広々としたレイアウトで、プライバシーを保ちながらリラックスできます。ボーナスのワークルームは比類のない汎用性を提供し、起業、クリエイティブな活動、または活気のある在宅ビジネスに最適です。緑豊かなコオラウ山脈を背景に、屋外での生活をお楽しみください。学校、有名なビーチや公園、ハイキングコース、ボート乗り場、地元の飲食店、公共交通機関などにも近く、大変便利です。年間道路使用料は50ドルです。寝室数は郡の記録と一致しない場合があります。購入者はデューデリジェンスを行う責任があります。今すぐエージェントにご連絡ください!
※自動翻訳のため表現が適切でない場合がございます。
(原文)
PRICED TO MOVE! Begin each day with breathtaking sunrises in the tranquil coastal beauty of picturesque Kaaawa. Ideally situated in a prime location, this expansive home presents endless opportunities to maximize your return on investment. R-5 zoning with approximately 11,032 square feet of land—ready for you to explore the possibilities. A rental-ready configuration ideal for investors, multigenerational living, guests, remote professionals, a dynamic opportunity for live-in hosts for long-term housing to students, interns, or visiting faculty, co-living arrangements, and more. The spacious layout, featuring multiple living rooms and lanai decks, makes it easy for you to relax in privacy. A bonus workroom offers unmatched versatility—ideal for entrepreneurial ventures, creative pursuits, or a thriving home-based business. Enjoy outdoor living with the lush Koolau Mountain Range as your backdrop. In proximity to schools, famous beaches and parks, hiking trails, boat ramps, local eateries, public transportation, and more! Annual road fees $50.00. The bedroom count may not match county records; buyers are responsible for doing their due diligence. Contact your agent today!


