物件概要
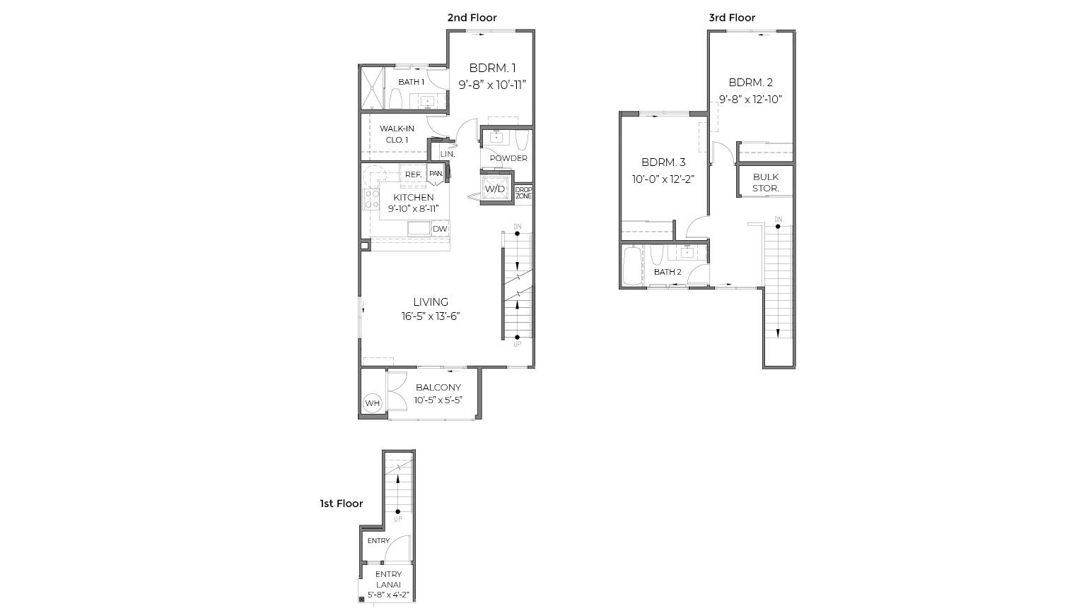
この3階建て、3ベッドルーム、2.5バスルームのコンドミニアムは、総居住面積1,317平方フィート(約131平方メートル)です。この家に入ると、リビングルームとペニンシュラキッチンへと続く階段が迎えてくれます。キッチンにはステンレス製の電化製品と白いソフトクローズキャビネットが備わっています。近くには便利なパウダールームがあります。2階には、ウォークインクローゼットと洗面台とウォークインシャワー付きの専用バスルームを備えた主寝室があります。リビングルームに続くバルコニーで、新鮮な空気を吸いながらリラックスしてください。3階には、それぞれ鏡付きのスライドドアクローゼットを備えた2つのセカンドベッドルームと、オープンコンセプトのファミリールームに隣接するバスタブとシャワーが一体となったセカンドバスルームがあります。スプリットエアコンと、レンジ/オーブン、電子レンジ、食器洗い機、冷蔵庫、洗濯機/乾燥機などの最新の電化製品が、快適な暮らしを実現します。 「NOW」(レッド タグ イベント)価格を受け取るには、購入者は 2026 年 1 月 2 日から 2026 年 1 月 25 日の間にレッド タグ イベント住宅の契約を締結し、2026 年 3 月 31 日までにエスクローを完了する必要があります。
※自動翻訳のため表現が適切でない場合がございます。
(原文)
This three story 3 bedroom and 2.5-bathroom condominium consist of 1,317 square feet of net living area. When you step into this home, you will be greeted by a staircase that leads you into the living room and peninsula kitchen featuring stainless steel appliances and white soft-close cabinets. Nearby is a convenient powder room. On the second floor, you'll find the primary bedroom with a walk-in closet and ensuite bathroom with a vanity sink and walk-in shower. Relax and take in the fresh air on the balcony off the living room. The third-floor features two secondary bedrooms, each with mirrored sliding door closets and a secondary bathroom with a combination bathtub and shower adjacent to an open concept family room. Split air conditioning and modern appliances including a range/oven, micro-hood, dishwasher, refrigerator, and washer/dryer allow for ease of living.
To receive the “NOW” (Red Tag Event) price, buyer must execute a contract on a Red Tag Event home between 01/02/26 and 01/25/26, and close escrow on or before 3/31/26.


