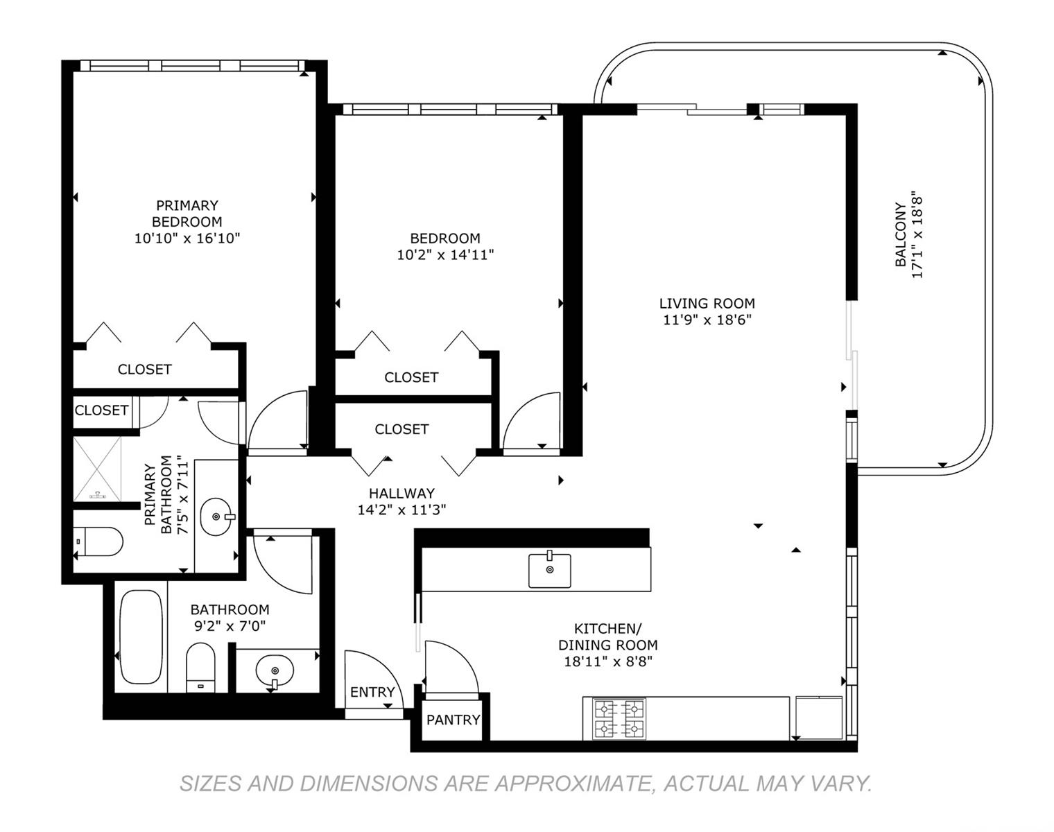
物件概要
2ベッドルーム、2バスルームのユニット。壮大なラップアラウンドラナイからは、雄大な山々、街、そしてダイヤモンドヘッドの絶景を一望できます。ユニットはほぼオリジナルの状態を保っており、斬新なアップグレードのアイデアを自由に生み出せるオープンキャンバスとなっています。物件は「現状有姿」で販売されます。隣接する2台の駐車スペース(オープン)をご用意しています。美しいプールエリア、セキュリティ完備の建物とエレベーター、常駐のMF(マネージメントマネージャー)、そして優秀なメンテナンススタッフも完備しています。ハワイ大学マノア校、シャミナード大学、マーケットシティのショッピング&ダイニング、バス路線、高速道路へのアクセス、そしてワイキキまで数分という便利なロケーションです。売主は5万ドルの特別査定額を支払い済みです。
※自動翻訳のため表現が適切でない場合がございます。
(原文)
A two bedroom, two bath unit featuring a spectacular wrap-around lanai with stunning mountain, city, and Diamond Head views. The unit is in mostly original condition, offering an open canvas ready for fresh upgrade ideas. The property is to be sold "AS IS." Two side by side open parking stalls. Property also features a beautiful pool area, secured building and elevators, manager on site M-F, and a great maintenance staff as well. Convenient location is within minutes to University of Hawaii Manoa, Chaminade University, Market City shopping and dining, bus lines, freeway access, and Waikiki. $50K special assessment has been paid by seller.



藤澤太郎ハワイ不動産