物件概要
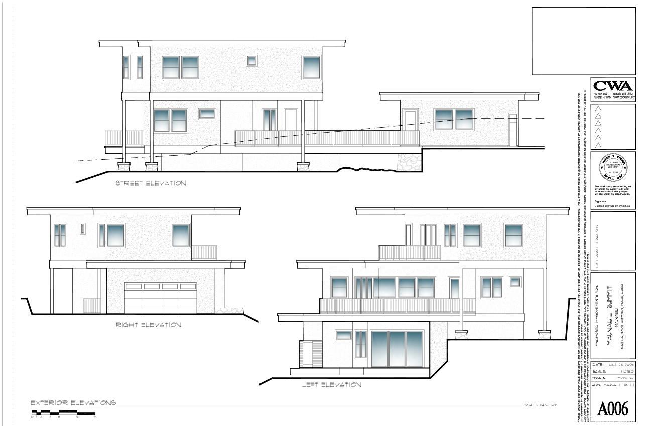
オーナーによる資金調達も検討中。楽園のような物件です。カイルアのマウナウィリ・サミットというプライベートコミュニティにある、広大な敷地面積。息を呑むような海、オロマナ山、ゴルフコース、そしてコオラウの絶景。夜には、星空と月明かりの絶景をお楽しみいただけます。マウナウィリ・サミット開発で唯一残された区画です。他の区画は既に完売しています。今すぐお申し込みください!プロジェクトの山側に位置し、近隣住民のいない静かで落ち着いた環境です。ロパカ・ウェイのプライベートゲートの奥に位置しています。ビーチやホノルルのダウンタウンへも車ですぐの便利な中心部に位置しています。ゼネコンとの相談も可能です。混合用途地域です。サンプル住宅の建築完成予想図と概略図は写真をご覧ください。また、添付の補足資料には売主による説明と免責事項も記載されています。
※自動翻訳のため表現が適切でない場合がございます。
(原文)
Owner financing considered. Paradise found. Estate-sized lot in private community of Maunawili Summit in Kailua.
Stunning Ocean, Olomana Mountain, Golf Course, and Koolau views. Mesmerizing stargazing & moon viewing at
night. The only remaining Lot available in the Maunawili Summit Development. All other lots have been taken. Act
now! Tranquil & quiet, with no neighbors, mountainside of the project. Located behind a private gated entry on
Lopaka Way. Centrally located with short drive to beaches and downtown Honolulu. A general contractor available to consult with. Mixed zoned lot. See photos for architectural renderings & schematics for a sample home, as well as Seller’s Explanation and Disclaimer in the attached Supplements.


