物件概要
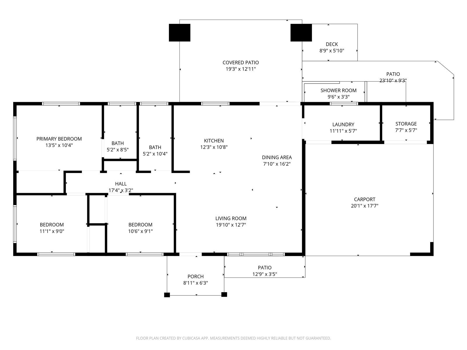
この新築住宅は2023年12月11日に完成しました。3ベッドルーム、2バスルームのこの物件は、美しいクォーツ製カウンタートップと高品質のガスレンジとオーブンを備えたキッチンが特徴です。ダイニングエリアは、吹き抜け天井のリビングルームへと続いています。その他、シンク付きのランドリールーム、2台分のカーポート、収納スペース、二重ガラスのビニール窓などの設備も充実しています。屋外には広い屋根付きパティオがあり、舗装道路に面しているため高速道路へのアクセスも容易です。ヒロからは約25分、パホアまたはケアアウからは約10分の距離です。この住宅には、UVライトバーと2段階ストリングフィルターを備えた10,000ガロンの貯水タンクが設置されています。プロパンガスシステムは2つのタンクに対応し、自動切り替え機能も備えています。この新築物件はいつでも内覧可能です。内覧をご希望の方は、お気軽にご連絡ください。
※自動翻訳のため表現が適切でない場合がございます。
(原文)
This newly constructed residential home was finalized on December 11, 2023. This 3-bedroom, 2-bathroom property features a kitchen with beautiful quartz counter-tops and a high-quality gas range and oven. The dining area leads into a living room with vaulted ceilings. Additional interior features include a laundry room with a sink, a 2-car carport, storage space, and double-pane vinyl windows. The exterior offers a large covered patio and is situated on a paved road with easy highway access. The location is approximately 25 minutes from Hilo and 10 minutes from Pahoa or Keaau. The home includes a 10,000-gallon water storage tank equipped with a UV lightbar and two-stage string filters. The propane system is set up for two tanks with an automatic switch-over feature. This brand-new construction is easy to show. Please contact me to schedule a viewing.


