物件概要
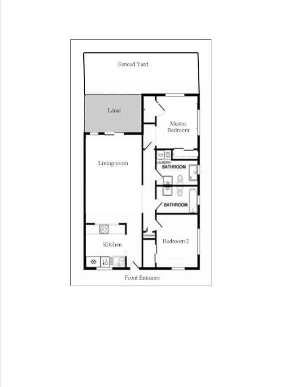
すぐに入居可能、改装工事完了。島で最も人気の高いコミュニティの一つ、マカキロ・クリフスへようこそ。美しく手入れされたこの2ベッドルーム、2バスルームの1階ユニットは、プライベートラナイとフェンスで囲まれた裏庭から山々の景色を眺めながら、静かで爽やかな島のライフスタイルを満喫できます。平屋建ての間取りは広々とした屋外スペースへとシームレスにつながり、リラックスしたり、ガーデニングを楽しんだり、ゲストをもてなしたりするのに最適です。その他、屋根付き駐車場2台分、コミュニティのバーベキューエリアとパティオエリアへのアクセスも魅力です。カポレイ・ショッピングセンター、カマカナ・アリイ・ショッピングセンター、カポレイ・コモンズ、コストコ、ウォーターパーク、飲食店、エンターテイメント施設、洗車場などにも近く、便利な立地です。マカキロ・クリフスで、快適さ、利便性、そして島暮らしを体験してください。VAローンの引き継ぎ金利は2.25%です。
※自動翻訳のため表現が適切でない場合がございます。
(原文)
Move in ready, renovations our compleated. Welcome to Makakilo Cliffs, one of the island’s most desirable communities. This beautifully maintained 2-bedroom, 2-bath ground-floor unit offers a peaceful, breezy, and serene island lifestyle with mountain views from the private lanai and fenced backyard. The single-level layout transitions seamlessly to an expansive outdoor space—ideal for unwinding, gardening, or entertaining. Additional highlights include two covered parking stalls, plus access to the community BBQ and patio areas. Conveniently located near Kapolei Shopping Center, Kamakana Ali'i Shopping Center, Kapolei Commons, Costco, Water Park, eateries, entertainment, car washes and more. Experience comfort, convenience, and island living at Makakilo Cliffs. VA assumable rate at 2.25%!


