物件概要
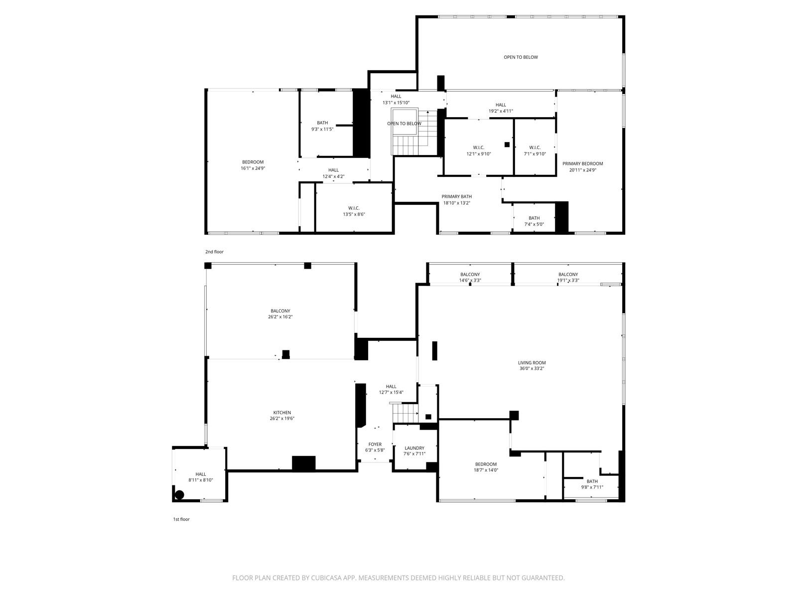
アラワイ・スカイライズのペントハウス1は、ホノルルの新たなホットスポットとして急速に発展を遂げているこのエリアで、洗練された都会のアイランドライフを体験できる貴重な機会を提供します。思慮深く改装された最上階の角部屋レジデンスは、抜群のプライバシーと、山々、街、海、ゴルフコース、そして遮るもののないダイヤモンドヘッドを背景に広がる壮大な景色を提供します。ドラマチックな2階建ての窓とカスタムメイドのスライドドアは、3ベッドルーム、3バスルームの住宅+書斎/オフィスを満たし、豊富な自然光と涼しい貿易風をもたらします。ハワイ大学マノア校、イオラニ・スクール、ショッピング、そして青木グループによるレストラン街に近い再開発エリアの理想的な立地で、ワイキキとビーチに直接アクセスできる新しい歩道橋(2027年予定)の利便性も加わります。このペントハウスは、洗練性、快適さ、そして接続性のシームレスなバランスを提供し、都心でプレミアムなサービスを求める目の肥えたオーナー居住者や投資家に最適です。
※自動翻訳のため表現が適切でない場合がございます。
(原文)
Penthouse 1 at Ala Wai Skyrise presents a rare opportunity for refined urban island living in a rapidly evolving neighborhood regarded as Honolulu’s next emerging hotspot. This thoughtfully renovated top-floor corner residence offers exceptional privacy and sweeping views spanning the mountains, city, ocean, golf course, and an unobstructed Diamond Head backdrop. Dramatic two-story windows and custom sliding doors fill the 3-bedroom, 3-bath home + Den/Office, with abundant natural light and cooling trade winds. Ideally situated in a revitalized area near UH Manoa, Iolani School, shopping, and upcoming dining by the Aoki Group, with the added convenience of a new pedestrian bridge (expected 2027) providing direct access to Waikiki and the beach. This penthouse delivers a seamless balance of sophistication, comfort, and connectivity, well suited for discerning owner-occupants or investors seeking a premium in-town offering.



藤澤太郎ハワイ不動産