物件概要
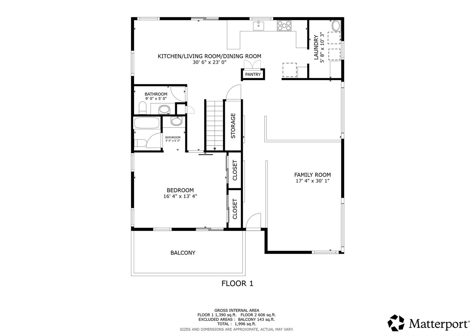
東ホノルルの人気エリア、アッパー・ハハイオネ・バレーに位置するこの美しく手入れされた家は、人気の高い学区にあり、2,100平方フィートを超える快適な居住空間を提供します。過去 5 年間にわたって考え抜かれた改修が行われ、バッテリー ストレージ付きの PV パネルの設置、各寝室とリビング エリアへのスプリット エアコン ユニットの設置、バスルームの改修、新しい高級ビニール プランク フローリング、安心のための 5 年前の屋根の設置など、アップグレードが含まれています。自然光と素晴らしい周辺環境を取り入れるように設計されたこの家は、メイン リビングルームへ数段上がると、海、山、街の景色を額縁のように切り取るピクチャー ウィンドウがある、居心地の良いエントランスが特徴です。キッチンと主寝室は便利なこの階にあり、さらに 3 つの寝室は上階にあります。屋外での生活も同様に魅力的で、スイミング プールと広々としたデッキがあります。主寝室からのラナイは、パノラマの景色を捉えるのに最適な位置にあります。海でのアクティビティ、ハイキング コース、ビーチ、コストコなどのショッピング センター、飲食店からわずか数分の理想的な場所にあります。この素晴らしい物件は、島暮らしの醍醐味を存分に味わえる物件です。間取り図もご用意しております。
※自動翻訳のため表現が適切でない場合がございます。
(原文)
Nestled in one of East Honolulu’s coveted neighborhoods, Upper Hahaione Valley, this beautifully maintained home offers 2,100+ square feet of comfortable living space in a highly desirable school district. Thoughtfully improved over the past five years, upgrades include the installation of PV panels with battery storage, split AC units in every bedroom and the living area, bathroom updates, new luxury vinyl plank flooring, and a 5-year-old roof for added peace of mind. Designed to embrace natural light and stunning surroundings, the home features a welcoming entry with just a few steps up to the main living room, where picture windows frame ocean, mountain, and city views. The kitchen and primary en-suite bedroom are conveniently located on this level, while three additional bedrooms are situated upstairs. Outdoor living is just as inviting, with a swimming pool and a spacious deck. The lanai from the primary bedroom is perfectly positioned to capture the panoramic scenery. Ideally located just minutes from ocean activities, hiking trails, beaches, shopping centers including Costco, eateries; this exceptional property offers the best of island living. Floor plan available.


