物件概要
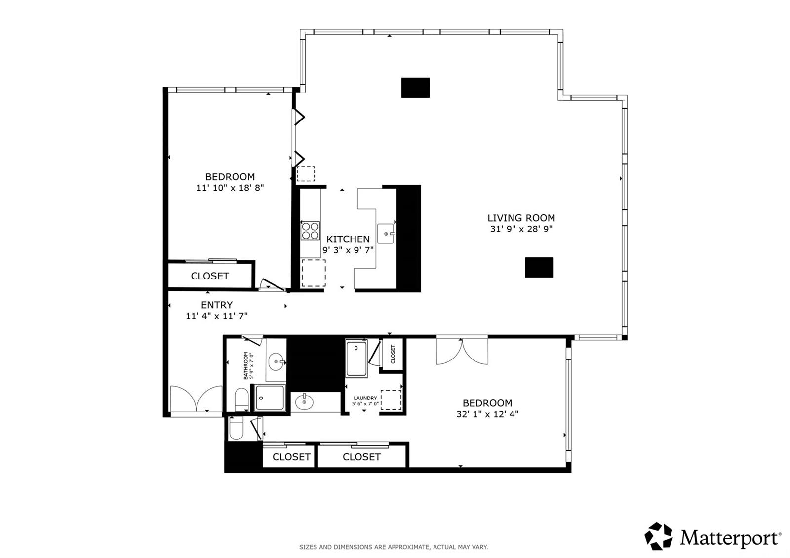
税評価額より 219,200 ドル安い。町で一番のお買い得物件。所有権付き、ベッドルーム 2 室、バスルーム 2 室、屋根付きガレージ駐車スペース 2 台、収納ロッカー 1 台、マウント テラス @ ウエスト マリーナ。オリジナルの状態、家のサイズ 1,644 平方フィート、明るい室内、セントラル エアコン付き。山に面したユニットで、直接風が吹き、日陰があります。マウント テラスは、24 時間ドアマン、ラケットボール コート、屋外プール、ジャグジー、バーベキューとガーデン パティオ、ミーティング ルームとパーティー ルーム、サウナ、エクササイズ ルーム、洗車、ゲスト用駐車場など、5 つ星リゾートのアメニティを提供しています。ハワイ カイのウエスト マリーナ地区の中心部に戦略的に位置し、クリオウオウ ビーチ パーク、マウナルア ベイ ビーチ パーク、フイ ナル カヌー クラブまで徒歩数分、ハワイ カイ タウン センター、コストコ、セーフウェイ、ココ マリーナ センター、ハワイで最も貴重なハナウマ ベイ自然保護区とココ ヘッド クレーターまで車で数分です。 **条件を満たす購入者には、3.125%の金利でVAローン(VAローン)が利用できる場合があります。** 売主は決済時に特別賦課金の全額を支払います。
※自動翻訳のため表現が適切でない場合がございます。
(原文)
$219,200 BELOW TAX ASSSED VALUE. BEST BARGAIN IN TOWN. Fee simple, 2 bedrooms, 2 bathrooms, 2 covered garage parking stalls, 1 storage locker at Mount Terrace @ West Marina. Original condition with house size 1,644 sq ft bright interior with central AC. Mountain facing unit with direct breeze and shade. Mount Terrace offers five-star resort amenities: 24-hour doorman, racquetball court, outdoor pool, whirlpool, BBQ and garden patios, meeting and party room, sauna, exercise room, car wash, and guest parking. Strategically located at the heart of Hawaii Kai's West Marina district with minutes walk to Kuliouou Beach Park, Maunalua Bay Beach Park, Hui Nalu Canoe Club, minutes drive to Hawaii Kai Towne Center, Costco, Safeway, Koko Marina Center and Hawaii's most treasured Hanauma Bay Nature Preserve and Koko Head Crater. **FOR QUALIFIED BUYERS, VA ASSUMABLE LOAN MAY BE AVAILABLE AT 3.125% INTEREST RATE.** SELLER WILL PAY OFF TOTAL SPECIAL ASSESSMENT AT CLOSING.


