物件概要
物件詳細
西オアフ
3
2
$766,430
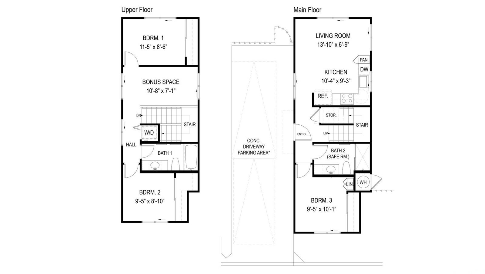
| 住所 | 91-3525 Kamalie Mua Street #32, Ewa Beach HI 96706 |
|---|---|
| 物件タイプ | 住居 一戸建て |
| ベッドルーム | 3ベッド |
バスルーム | 2バスルーム |
|---|---|---|---|
| 駐車場(台数) | 2台 |
築年 | 2026年 |
| 室内面積 | 997.0sqft(約93㎡) | ラナイ面積 | |
| 建物面積 | 敷地面積 | 1,920.0sqft(約178㎡) | |
| 管理費 | $68 | 月額の固定資産税 |
| 共有設備 | |
|---|---|
| 室内設備 | AC Split,Dishwasher,Disposal,Dryer,Home Warranty,Lawn Sprinkler,Microwave Hood,Range/Oven,Refrigerator,Solar Heater,Washer |
| 眺望 | |
| 近隣学校(校区) | HOOPILI-AHAKEA |
| FSおよびLH | 土地所有権付 |
| MLSナンバー | 202605595 |
Broker:Justin F Gamboa,(808) 850-8449
https://propertysearch.hicentral.com/HBR/ForSale/?/202605595
Copyright © 2026 HiCentral MLS ltd. All rights reserved. All information provided by the listing agent/broker is deemed reliable but is not guaranteed and should be independently verified.