物件概要
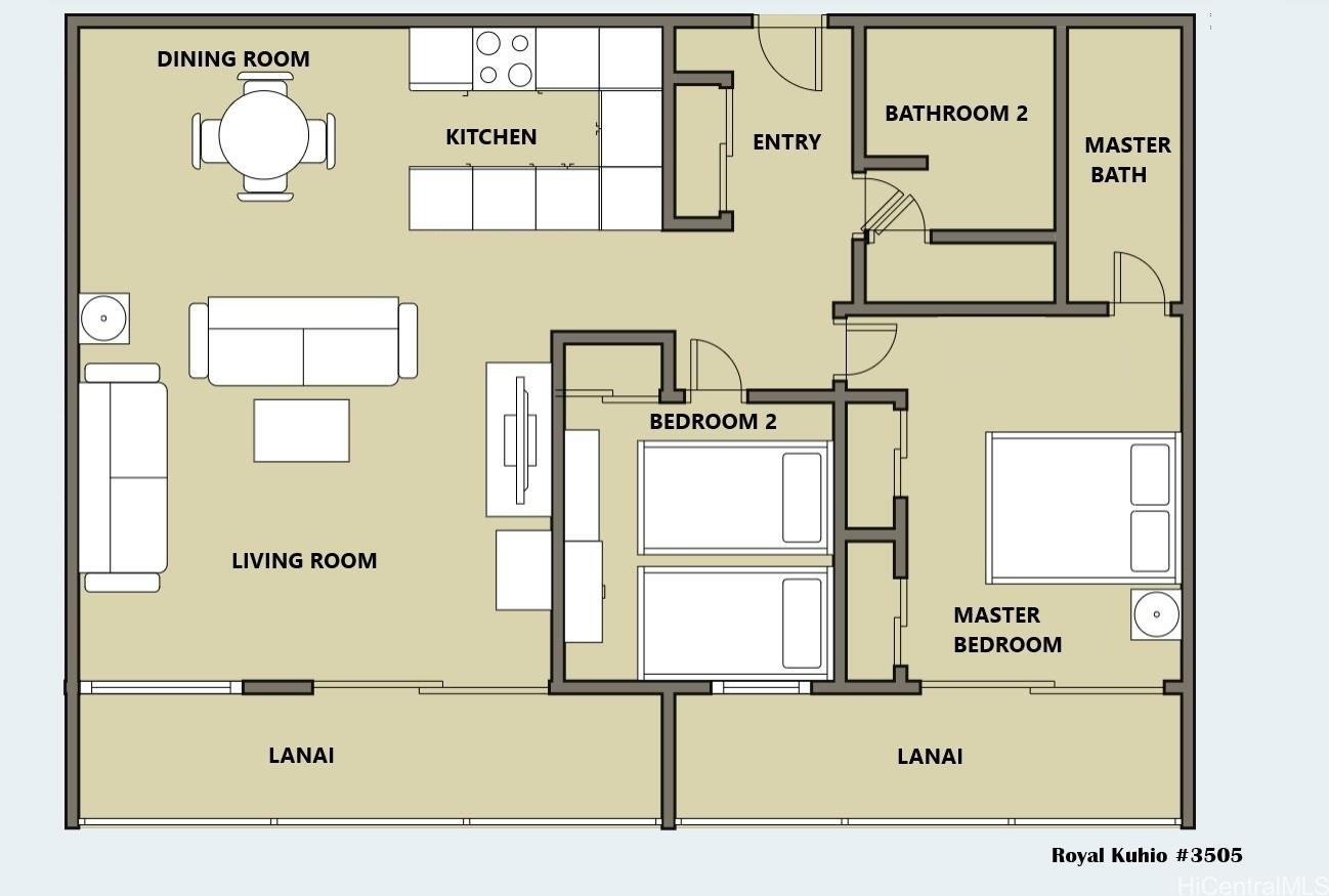
ロイヤル・クヒオの高層階にある05号棟は、どの部屋からも素晴らしいオーシャンフロントの景色が望め、街のスカイラインと鮮やかな夕日のパノラマビューも楽しめます。この人気の高い2ベッドルームのレジデンスは、涼しい貿易風が心地よく吹き込む広々とした明るいレイアウトで、屋内と屋外がシームレスにつながる快適な暮らしを実現します。2つのゆったりとしたラナイは、ワイキキの象徴的な海の景色を存分に堪能しながら、リラックスしたり、ゲストをもてなしたりするのに最適な空間です。ワイキキの中心部に位置し、世界クラスのビーチ、レストラン、ショッピング、ナイトライフにもすぐアクセスできます。ユニットには2台分の駐車スペースと便利な同階の収納スペースが含まれています。居住者は、セキュリティ完備のエントランス、プール、レクリエーション施設を利用でき、管理の行き届いた建物で快適なアイランドライフと高い投資可能性の両方を享受できる絶好の機会です。
※自動翻訳のため表現が適切でない場合がございます。
(原文)
Elevated high-floor 05 stack in Royal Kuhio showcasing stunning oceanfront views from every room, along with sweeping panoramas of the city skyline and vibrant sunsets. This highly desirable 2-bedroom residence features a spacious, light-filled layout enhanced by cool tradewinds and a seamless indoor-outdoor living experience.
Two generous lanais provide the perfect setting to relax or entertain while fully embracing Waikiki’s iconic ocean scenery. Ideally located in the heart of Waikiki, just moments from world-class beaches, dining, shopping, and nightlife.
The unit includes two parking stalls and convenient same-floor storage. Residents enjoy secured entry, a pool, and recreation amenities in a well-managed building—an excellent opportunity for both comfortable island living and strong investment potential.



スターツインターナショナルハワイ
詳細はこちら