物件詳細

3224 Pelekane Drive #Parcel 053, Honolulu HI 96817

  • 売出物件
  • 売出中

0

$1,199,000

物件概要

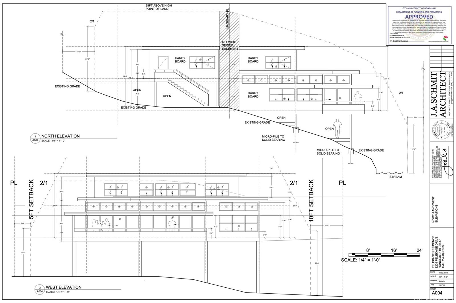
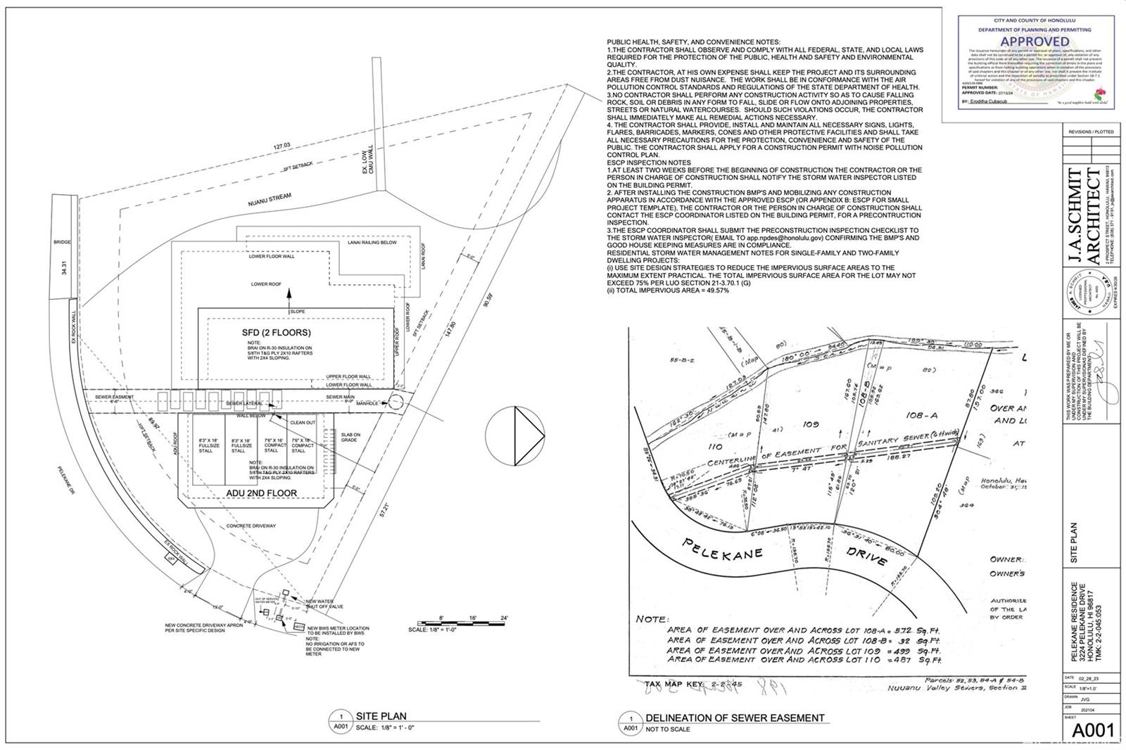
ダウセットの緑豊かな木々に囲まれ、流れ落ちるヌウアヌ川のすぐそばに位置するこの静かな土地は、建築計画が承認され、建築許可も取得済みです。DPP(建築許可申請)の待ち時間はありません。トロピカル・モダニズムと島の感性で知られる受賞歴のある地元建築家、ジム・シュミットが設計したこの現代的な邸宅は、木々に囲まれ、この人気のハワイの住宅街に溶け込むように設計されています。ペレカネ・ドライブから平坦なアプローチで入ると、床から天井まで広がる大きな窓が、生き生きとした緑をまるでアートのように切り取り、その下では、小川が段々になった地形を流れ落ち、穏やかな滝となって流れ落ちます。屋根付きのラナイがリビングスペースを広げ、4台分のカーポートの上には承認済みのADU(付属住宅ユニット)があり、ホームオフィス、スタジオ、ゲストルームなど、無限の可能性を秘めています。ここはダウセット。歴史に彩られ、熱帯植物に抱かれ、オアフ島で最も愛されている谷の一つであるこの静かな魔法の世界です。敷地内には、モンステラ、ジャワプラム、マンゴー、ハワイアンジンジャー、ウル、ティーリーフ、ヘリコニアなど、様々な植物が植えられています。設計図は承認済みです。今すぐ建築業者にご相談ください。

※自動翻訳のため表現が適切でない場合がございます。

(原文)
Nestled among the lush canopies of Dowsett, next to the tumbling Nu'uanu Stream, this serene parcel has APPROVED architectural plans, PERMITTED TO BUILD — No DPP wait. Designed by award-winning local architect Jim Schmit, known for tropical modernism and island sensibility, this contemporary residence is designed to live among the trees and belong to this coveted Hawaii neighborhood. Enter from a level approach off Pelekane Drive, expansive floor-to-ceiling windows frame the living greenery like art, while below, the stream tumbles across terraced tiers into soothing gentle waterfalls. A covered lanai extends living outward, and an approved ADU above the four-car carport offers endless possibility — home office, studio, guest quarters. This is Dowsett: steeped in history, embraced by tropical vegetation, and the quiet magic of one of O'ahu's most cherished valleys. The lot is graced with monstera, Java plum, mango, Hawaiian ginger, 'ulu, ti leaf, heliconia, and more. Plans fully approved — talk with your builder today.

物件詳細

住所 3224 Pelekane Drive #Parcel 053, Honolulu HI 96817
物件タイプ 空き地 空き地
駐車場(台数)
築年
室内面積 ラナイ面積
建物面積 敷地面積 9,500.0sqft(約883㎡)
管理費 月額の固定資産税 $568
共有設備
室内設備
眺望 マウンテンビュー
近隣学校(校区) DOWSETT
小学校:Nuuanu
中学校:Kawananakoa
高校:Roosevelt
FSおよびLH 土地所有権付
MLSナンバー 202607250

同じエリアの新着物件

不動産会社・
エージェントにお問合せ
閉じる

おすすめのエージェント

ご希望のお問合せ先を選択してください