物件詳細

91-1170 Hoonaauao Street #1502, Kapolei HI 96707

  • 売出物件
  • 売出中

3

2

$725,535

物件概要

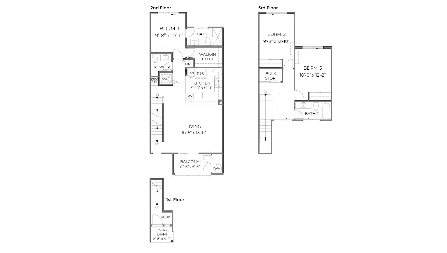
この3階建て、3ベッドルーム、2.5バスルームのコンドミニアムは、居住面積1,317平方フィートです。玄関を入ると、リビングルームとペニンシュラキッチンへと続く階段があり、キッチンにはステンレス製の家電製品と白いソフトクローズキャビネットが備えられています。近くには便利なパウダールームがあります。2階には、ウォークインクローゼットと洗面台とウォークインシャワー付きの専用バスルームを備えた主寝室があります。リビングルームから続くバルコニーで、リラックスして新鮮な空気をお楽しみください。3階には、それぞれ鏡付きのスライドドアクローゼットを備えた2つのセカンドベッドルームと、オープンコンセプトのファミリールームに隣接するバスタブとシャワーが一体となったセカンドバスルームがあります。スプリットエアコンと、レンジ/オーブン、電子レンジフード、食器洗い機、冷蔵庫、洗濯乾燥機などの最新家電製品により、快適な生活を送ることができます。

※自動翻訳のため表現が適切でない場合がございます。

(原文)
This three story 3 bedroom and 2.5 bathroom condominium consists of 1,317 square feet of net living area. When you step into this home, you will be greeted by a staircase that leads you into the living room and peninsula kitchen featuring stainless steel appliances and white soft-close cabinets. Nearby is a convenient powder room. On the second floor, you'll find the primary bedroom with a walk-in closet and ensuite bathroom with a vanity sink and walk-in shower. Relax and take in the fresh air on the balcony off the living room. The third floor features two secondary bedrooms each with mirrored sliding door closets and a secondary bathroom with a combination bathtub and shower adjacent to an open concept family room. Split air conditioning and modern appliances including a range/oven, micro-hood, dishwasher, refrigerator, and washer/dryer allow for ease of living.

オープンハウス(内覧会)情報

  • 日時

    2026.04.18 10:00〜17:00

  • 説明

    Contact the Hoopili Pohaku Estates Sales Center: 91-4116 Hikuha St., Kapolei, HI 96707 AlanaSales@drhorton.com or (808)674-8398. OPEN daily ...

  • 日時

    2026.04.19 10:00〜17:00

  • 説明

    Contact the Hoopili Pohaku Estates Sales Center: 91-4116 Hikuha St., Kapolei, HI 96707 AlanaSales@drhorton.com or (808)674-8398. OPEN daily ...

  • 日時

    2026.04.20 10:00〜17:00

  • 説明

    Contact the Hoopili Pohaku Estates Sales Center: 91-4116 Hikuha St., Kapolei, HI 96707 AlanaSales@drhorton.com or (808)674-8398. OPEN daily ...

  • 日時

    2026.04.21 10:00〜17:00

  • 説明

    Contact the Hoopili Pohaku Estates Sales Center: 91-4116 Hikuha St., Kapolei, HI 96707 AlanaSales@drhorton.com or (808)674-8398. OPEN daily ...

  • 日時

    2026.04.22 10:00〜17:00

  • 説明

    Contact the Hoopili Pohaku Estates Sales Center: 91-4116 Hikuha St., Kapolei, HI 96707 AlanaSales@drhorton.com or (808)674-8398. OPEN daily ...

  • 日時

    2026.04.23 10:00〜17:00

  • 説明

    Contact the Hoopili Pohaku Estates Sales Center: 91-4116 Hikuha St., Kapolei, HI 96707 AlanaSales@drhorton.com or (808)674-8398. OPEN daily ...

  • 日時

    2026.04.24 22:00〜17:00

  • 説明

    Contact the Hoopili Pohaku Estates Sales Center: 91-4116 Hikuha St., Kapolei, HI 96707 AlanaSales@drhorton.com or (808)674-8398. OPEN daily ...

  • 日時

    2026.04.25 10:00〜17:00

  • 説明

    Contact the Hoopili Pohaku Estates Sales Center: 91-4116 Hikuha St., Kapolei, HI 96707 AlanaSales@drhorton.com or (808)674-8398. OPEN daily ...

  • 日時

    2026.04.26 10:00〜17:00

  • 説明

    Contact the Hoopili Pohaku Estates Sales Center: 91-4116 Hikuha St., Kapolei, HI 96707 AlanaSales@drhorton.com or (808)674-8398. OPEN daily ...

  • 日時

    2026.04.27 10:00〜17:00

  • 説明

    Contact the Hoopili Pohaku Estates Sales Center: 91-4116 Hikuha St., Kapolei, HI 96707 AlanaSales@drhorton.com or (808)674-8398. OPEN daily ...

物件詳細

住所 91-1170 Hoonaauao Street #1502, Kapolei HI 96707
物件タイプ 住居 コンドミニアム・タウンハウス
ベッドルーム 3ベッド
バスルーム 2バスルーム
駐車場(台数) 2台
築年 2025年(築1年)
室内面積 1,317.0sqft(約122㎡) ラナイ面積
建物面積 敷地面積
管理費 $661 月額の固定資産税
共有設備 スプリンクラーシステム
室内設備 AC Split,Blinds,Dishwasher,Disposal,Dryer,Home Warranty,Microwave Hood,Range/Oven,Refrigerator,Smoke Detector,Washer,Water Heater
眺望
近隣学校(校区) HOOPILI-ALANA
FSおよびLH 土地所有権付
MLSナンバー 202607730

不動産会社・
エージェントにお問合せ
閉じる

おすすめのエージェント

ご希望のお問合せ先を選択してください