物件詳細

91-3529 Nana Hope Street #3306, Ewa Beach HI 96706

  • 売出物件
  • 売出中

2

2

$626,450

物件概要

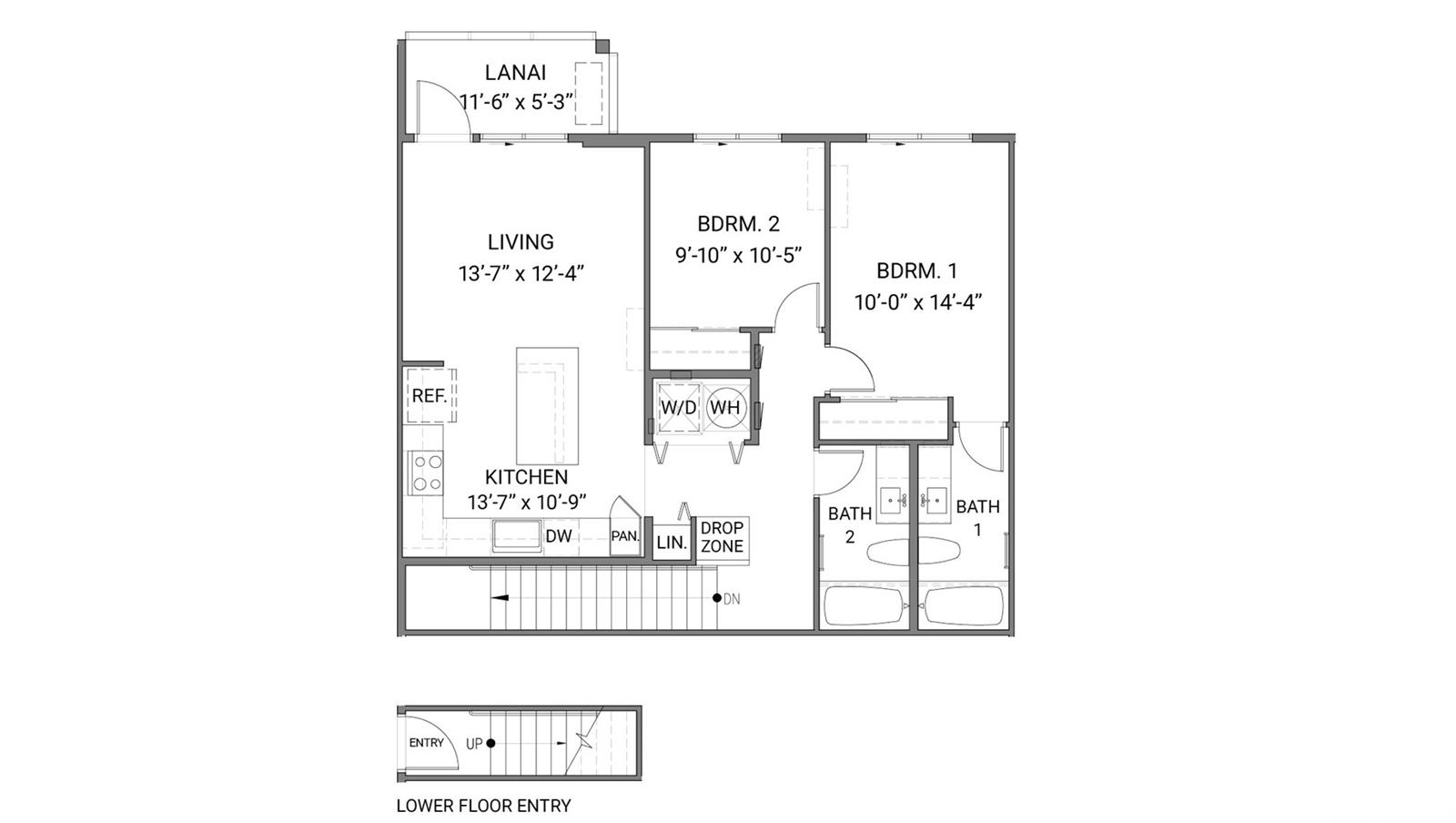
この2階建て、2ベッドルーム、2バスルームのコンドミニアムは、933平方フィートの居住スペースを提供します。玄関を入ると、アイランドキッチン、ステンレス製家電、白いソフトクローズキャビネットを備えたキッチンへと続く階段が迎えてくれます。キッチンの奥には、日常生活やゲストをもてなすのに最適なオープンコンセプトのリビングルームがあります。リビングエリアのすぐ横には、新鮮な空気とアウトドアライフを楽しめるリラックスできるラナイがあります。廊下を進むと、ランドリーエリア、鏡付きスライドドアクローゼットのあるセカンドベッドルーム、そして廊下を挟んで向かい側には洗面台とシャワー付きバスタブを備えたバスルームがあります。さらに、鏡付きスライドドアクローゼットのあるメインベッドルームと、洗面台とバスタブ付きシャワーを備えた専用バスルームが、この住まいを完成させています。スプリットエアコンと、レンジ/オーブン、電子レンジ付き換気扇、食器洗い機、冷蔵庫、洗濯乾燥機などの最新家電が、快適で便利な生活をサポートします。

※自動翻訳のため表現が適切でない場合がございます。

(原文)
This two story, two bedroom, two bathroom condominium offers 933 square feet of net living area. Upon entering the home, you are welcomed by the staircase that leads you to the kitchen featuring an island, stainless steel appliances, and white soft-close cabinetry. Beyond the kitchen is an open concept living room, perfect for everyday living and entertaining. Just off the living area, the lanai provides relaxing space to enjoy fresh air and outdoor living. Down the hallway, you’ll find the laundry area, secondary bedroom with a mirrored sliding door closet, and bathroom featuring a vanity and shower-tub combination across the hall. Additionally, the primary bedroom with a mirrored sliding-door closet, and ensuite bathroom with a vanity sink and combined bathtub and shower help complete the home. Split air conditioning and modern appliances including a range/oven, micro-hood, dishwasher, refrigerator, and washer/dryer add comfort and convenience for easy living

物件詳細

住所 91-3529 Nana Hope Street #3306, Ewa Beach HI 96706
物件タイプ 住居 コンドミニアム・タウンハウス
ベッドルーム 2ベッド
バスルーム 2バスルーム
駐車場(台数) 2台
築年 2026年
室内面積 933.0sqft(約87㎡) ラナイ面積
建物面積 敷地面積
管理費 $367 月額の固定資産税
共有設備 スプリンクラーシステム
室内設備 AC Split,Blinds,Dishwasher,Disposal,Dryer,Home Warranty,Microwave Hood,Range/Oven,Refrigerator,Smoke Detector,Washer
眺望
近隣学校(校区) HOOPILI
FSおよびLH 土地所有権付
MLSナンバー 202607966

不動産会社・
エージェントにお問合せ
閉じる

おすすめのエージェント

ご希望のお問合せ先を選択してください