物件詳細

91-3529 Nana Hope Street #3308, Ewa Beach HI 96706

  • 売出物件
  • 売出中

2

2

$628,450

物件概要

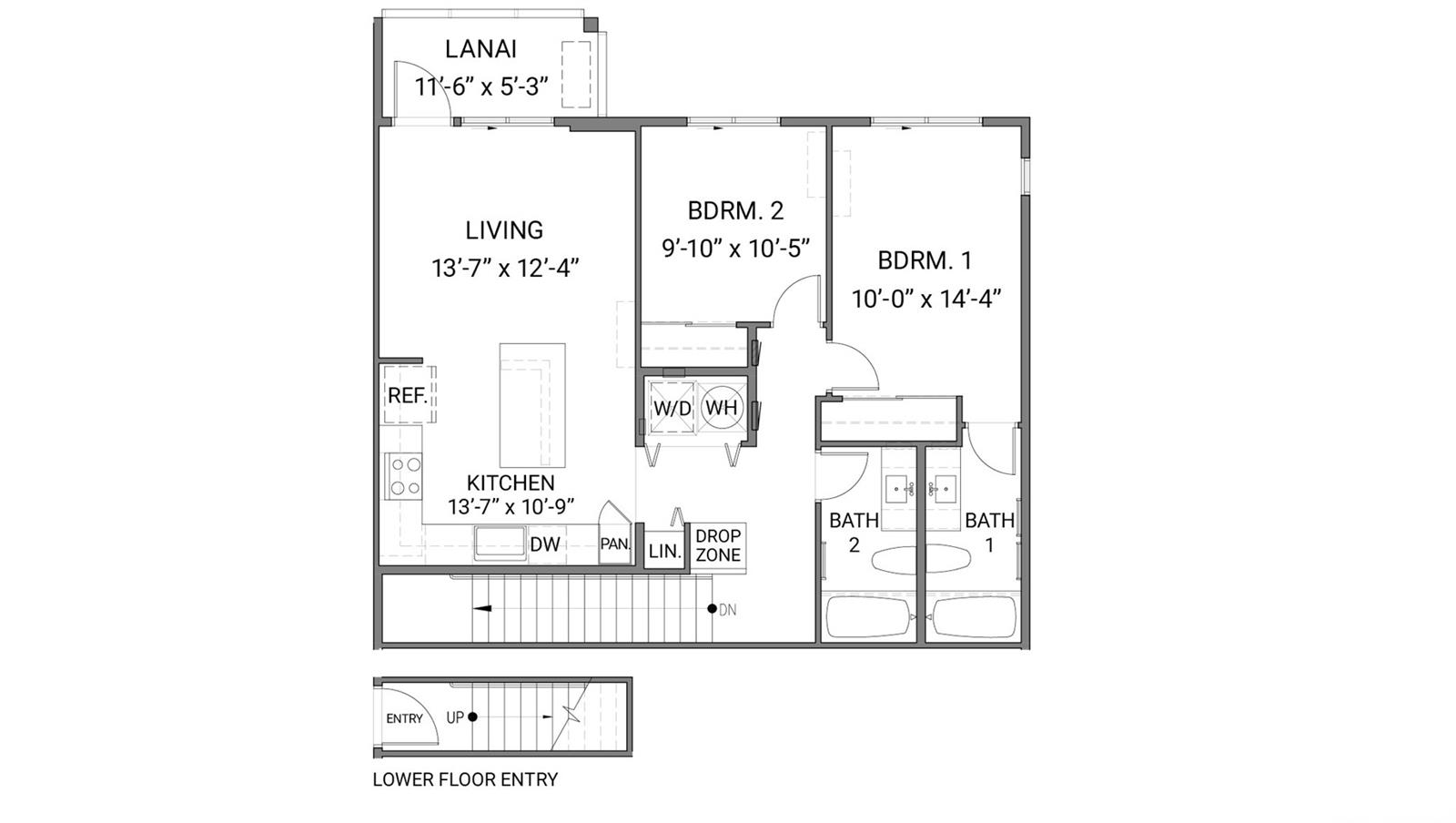
この2階建て、2ベッドルーム、2バスルームのコンドミニアムは、934平方フィートの居住スペースを提供します。玄関を入ると、アイランドキッチン、ステンレス製家電、ソフトクローズ機能付きの白いキャビネットを備えたキッチンへと続く階段があります。キッチンの奥には、日常生活や来客をもてなすのに最適なオープンコンセプトのリビングルームがあります。リビングエリアのすぐ横には、新鮮な空気と屋外を楽しむためのリラックスできるラナイがあります。廊下を進むと、ランドリーエリア、鏡付きスライドドアクローゼットのあるセカンドベッドルーム、そして廊下を挟んで向かい側には洗面台とシャワー付きバスタブを備えたバスルームがあります。さらに、鏡付きスライドドアクローゼットのあるメインベッドルームと、洗面台とバスタブとシャワーが一体となった専用バスルームが、この住まいを完成させています。スプリットエアコンと、レンジ/オーブン、電子レンジ付き換気扇、食器洗い機、冷蔵庫、洗濯乾燥機などの最新家電が、快適で便利な暮らしを演出します。

※自動翻訳のため表現が適切でない場合がございます。

(原文)
This two story, two bedroom, two bathroom condominium offers 934 square feet of net living area. Upon entering the home, you are welcomed by the staircase that leads you to the kitchen featuring an island, stainless steel appliances, and white soft-close cabinetry. Beyond the kitchen is an open concept living room, perfect for everyday living and entertaining. Just off the living area, the lanai provides relaxing space to enjoy fresh air and the outdoors. Down the hallway, you’ll find the laundry area, secondary bedroom with a mirrored sliding door closet, and bathroom featuring a vanity and shower-tub combination across the hall. Additionally, the primary bedroom with a mirrored sliding-door closet, and ensuite bathroom with a vanity sink and combined bathtub and shower help complete the home. Split air conditioning and modern appliances including a range/oven, micro-hood, dishwasher, refrigerator, and washer/dryer add comfort and convenience for easy living.

物件詳細

住所 91-3529 Nana Hope Street #3308, Ewa Beach HI 96706
物件タイプ 住居 コンドミニアム・タウンハウス
ベッドルーム 2ベッド
バスルーム 2バスルーム
駐車場(台数) 2台
築年 2026年
室内面積 934.0sqft(約87㎡) ラナイ面積
建物面積 敷地面積
管理費 $367 月額の固定資産税
共有設備 スプリンクラーシステム
室内設備 AC Split,Blinds,Dishwasher,Disposal,Dryer,Home Warranty,Microwave Hood,Range/Oven,Smoke Detector,Washer,Water Heater
眺望
近隣学校(校区) HOOPILI
FSおよびLH 土地所有権付
MLSナンバー 202607977

不動産会社・
エージェントにお問合せ
閉じる

おすすめのエージェント

ご希望のお問合せ先を選択してください