物件詳細

1150A Kamahele Street #3003, Kailua HI 96734

  • 売出物件
  • 売出中

3

2

$1,699,000

物件概要

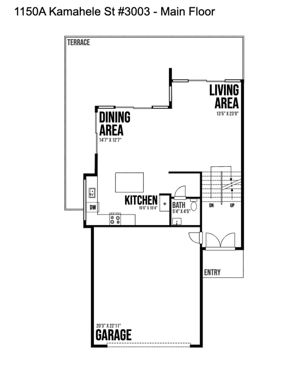
カイルア屈指のゲート付きコミュニティ、ブルーストーンにある、豪華な3階建て3ベッドルーム、2.5バスルームの角部屋タウンハウスへようこそ。自然保護区とミッドパシフィックゴルフコースに隣接し、ラニカイビーチまで徒歩圏内です。複数のベランダから雄大な山々とゴルフコースの眺望をお楽しみいただけます。シェフズキッチンは美しいキャビネット、重厚な石のカウンタートップ、最新鋭の家電を備え、洗練された仕上げと洗練されたデザインのダイニングエリアとリビングエリアへとつながります。人気の角部屋であるメインフロアには、広々としたラップアラウンド式の屋根付きベランダがあり、おもてなしにも最適です。最上階は、屋根付きベランダ、ウォークインクローゼット、豪華な専用バスルームを備えたプライベートなプライマリースイートです。下階には、屋根付きベランダと美しく整えられたフルバスルーム、そして大きな収納/プレイルームを備えた2つのベッドルームがあります。その他の特徴としては、車寄せ付きのフルサイズの2台用ガレージ(珍しい!)、メインフロアのゲスト用ハーフバスルーム、フルサイズのランドリーなどがあります。ブルーストーンは、テニスコート、プール、ホットタブ、クラブハウス、バーベキューエリア、遊歩道、オンサイト管理、セキュリティパトロール、ゲート式エントランスなど、リゾートスタイルのアメニティを提供しています。まさに理想の住まいです!エージェントのコメントで3Dツアーをご覧ください。

※自動翻訳のため表現が適切でない場合がございます。

(原文)
Welcome home to this luxurious tri-level 3-bedroom, 2.5-bath corner townhouse in Bluestone, Kailua’s premier gated community. Bordered by preservation land and the Mid Pacific Golf Course, your just a short walk to Lanikai Beach!

Enjoy sweeping mountain, golf course views from multiple lanais. The chef’s kitchen features beautiful cabinetry, solid stone countertops, and upgraded appliances, opening to the dining and living areas with refined finishes and sophisticated design. As a coveted corner unit, the main level expansive wrap-around covered lanai is perfect for entertaining.

The top floor is a private primary suite with covered lanai, walk-in closet, and luxurious ensuite bath. Two additional bedrooms on the lower level share a covered lanai and a beautifully appointed full bath, plus a large storage/play room. Additional highlights include a full-size two-car garage with driveway (rare!), guest half bath on the main level, and full-size laundry.

Bluestone offers resort-style amenities including tennis courts, pool, hot tub, clubhouse, BBQ areas, walking paths, on-site management, security patrol, and gated entry. This is the home you want! 3-D Tour in Agent comments.

オープンハウス(内覧会)情報

  • 日時

    2026.01.29 21:30〜11:30

  • 説明

    Park outside the gate if possible and call Thomas Wilson at (808) 772-0790 to open the gate. First home as you enter the gate.

  • 日時

    2026.02.01 14:00〜17:00

  • 説明

    Park outside the gate if possible and call Thomas Wilson at (808) 772-0790 to open the gate. First home as you enter the gate.

物件詳細

住所 1150A Kamahele Street #3003, Kailua HI 96734
物件タイプ 住居 コンドミニアム・タウンハウス
ベッドルーム 3ベッド
バスルーム 2バスルーム
駐車場(台数) 4台
築年 1979年(築47年)
室内面積 1,996.0sqft(約185㎡) ラナイ面積
建物面積 敷地面積 2,309,421.0sqft(約214,552㎡)
管理費 $1,733 月額の固定資産税 $449
共有設備 デッキ、パティオ、スポーツコート、バーベキューエリア
室内設備 AC Split,Auto Garage Door Opener,Ceiling Fan,Dishwasher,Disposal,Dryer,Microwave,Range/Oven,Refrigerator,Smoke Detector,Washer,Water Heater
眺望 マウンテンビュー,ゴルフコース
近隣学校(校区) BLUESTONE
FSおよびLH 土地所有権付
MLSナンバー 202601527

不動産会社・
エージェントにお問合せ
閉じる

おすすめのエージェント

ご希望のお問合せ先を選択してください