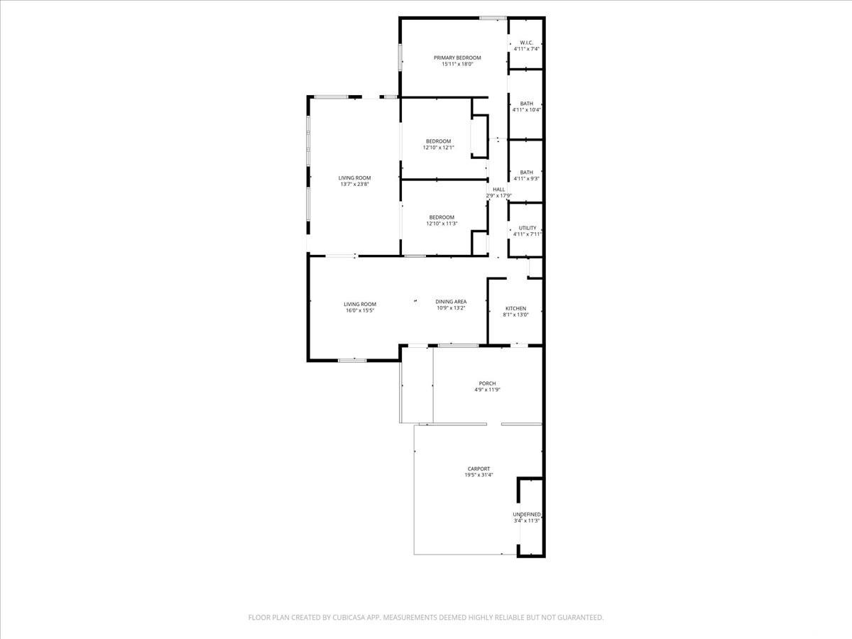
物件概要
人気のミリラニの閑静な通りに位置する、手入れの行き届いた平屋建て住宅です。3ベッドルーム、2バスルームのこの住宅は、自然光がたっぷりと差し込む機能的な間取り、カーポート、屋根付きのラナイ/収納スペース、そして家全体に十分な収納スペースを備えています。この住宅は、快適に入居でき、時間をかけてご自身のスタイルに合わせてリフォームしていくことができます。2.75%の金利でVAローンを引き継ぐことができるため、資格のある購入者は今日の市場で大幅な節約を実現できる貴重な機会となります。袋小路に位置しているためプライバシーが確保され、通り抜け交通も制限されます。学校、公園、ショッピング、レストラン、高速道路へのアクセスも便利です。人気の高いミリラニ地区でマイホームを所有する絶好の機会です。
※自動翻訳のため表現が適切でない場合がございます。
(原文)
Well-maintained single-level home located on a quiet street in desirable Mililani. This 3-bedroom, 2-bath residence features a functional layout with great natural light, a carport, covered lanai/storage area, and ample storage throughout. This home offers the opportunity to move in comfortably and update to your own style over time. VA assumable loan at 2.75% interest rate offers a rare opportunity for qualified buyers to secure significant savings in today’s market. The cul-de-sac location enhances privacy and limits through traffic. Conveniently located near schools, parks, shopping, dining, and freeway access. A great opportunity to own a home in the highly desirable Mililani community.


