物件概要
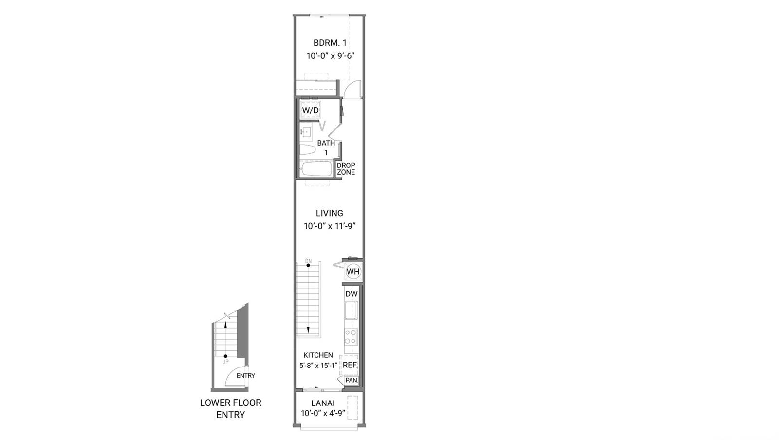
この2階建て、1ベッドルーム、1バスルームのコンドミニアムは、572平方フィートの居住スペースを提供します。玄関を入ると、メインのリビングエリアへと続く階段が迎えてくれます。住居の一端には、ステンレス製の家電製品と白いソフトクローズ式のキャビネットを備えたキッチンがあります。キッチンのすぐ横には、新鮮な空気と屋外を楽しむためのリラックスできるラナイがあります。リビングエリアを過ぎると、中央の廊下があり、洗面台とバスタブとシャワーが一体となったバスルームへと続いています。バスルーム内には洗濯スペースがあります。また、鏡付きのスライドドアクローゼットを備えたベッドルームは、住居の反対側にプライベートな空間として配置されています。スプリットエアコンと、レンジ/オーブン、電子レンジ付き換気扇、食器洗い機、冷蔵庫、洗濯乾燥機などの最新家電製品が、快適で便利な暮らしを演出します。
※自動翻訳のため表現が適切でない場合がございます。
(原文)
This two story, one bedroom, one bathroom condominium offers 572 square feet of net living area. Upon entering the home, you are welcomed by the staircase that leads you to the main living area. At one end of this residence, the kitchen features stainless steel appliances and white soft-close cabinetry. Just off the kitchen, the lanai provides relaxing space to enjoy fresh air and the outdoors. Past the living area, the central hallway leads you to the bathroom with a vanity sink and combined bathtub and shower. Inside the bathroom, you’ll find the laundry area. Additionally, the bedroom with a mirrored sliding-door closet is privately situated at the opposite end of the home. Split air conditioning and modern appliances including a range/oven, micro-hood, dishwasher, refrigerator, and washer/dryer add comfort and convenience for easy living.


