物件概要
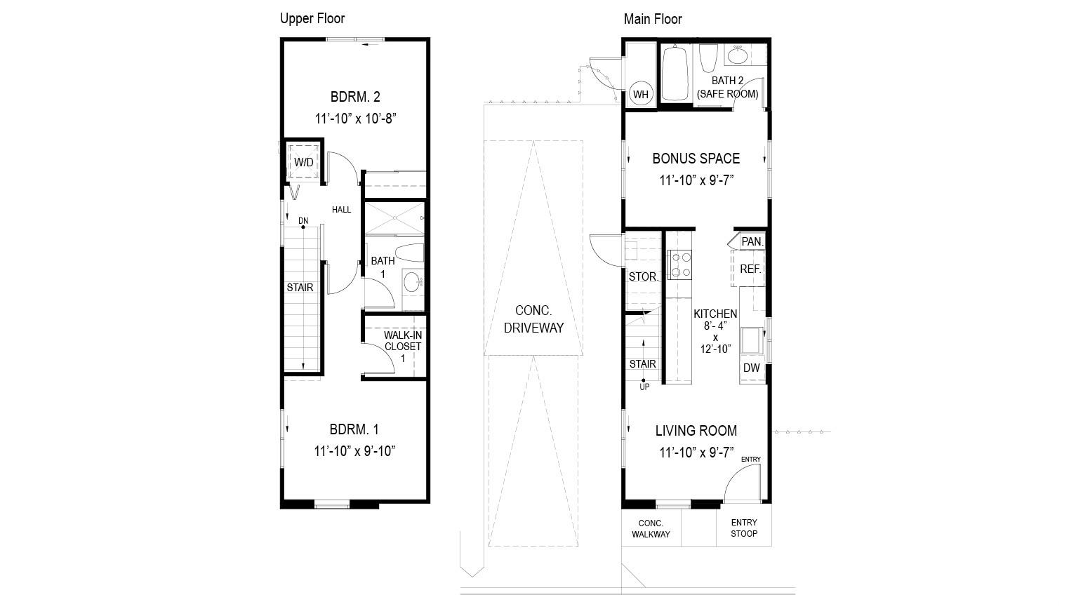
この2階建て、2ベッドルーム、2バスルームの独立型一戸建て住宅は、880平方フィートの正味居住エリアと、完全にフェンスで囲まれたプライベートな裏庭エリアで構成されています。この家に入ると、リビングルームが迎えてくれ、そこからシームレスにキッチンへと続きます。キッチンには、バーの高さの座席エリア、ステンレス製の電化製品、白いソフトクローズキャビネットが備わっています。1階には、シャワーとバスタブが一体となったフルバスルームと、ホームオフィス、ラウンジルーム、ゲームルームに最適なボーナススペースがあり、可能性は無限大です。2階には、ウォークインクローゼットと洗面台とウォークインシャワー付きの専用バスルームを備えたセカンダリーベッドルームとプライマリーベッドルームがあります。全館スプリットエアコンと、レンジ/オーブン、電子レンジ、レンジフード、食器洗い機、冷蔵庫、洗濯機/乾燥機などの最新の電化製品が快適な生活を提供します。このユニットは、HRS 514B-96に準じて、当初はオーナー居住者向けに販売されます。所有者居住者宣誓供述書が必要です。宣誓供述書は Ho'opili Pohaku Estates セールス センターで入手できます。
※自動翻訳のため表現が適切でない場合がございます。
(原文)
This two story 2-bedroom 2-bathroom detached single family home consists of 880 square feet of net living area and a fully fenced private back yard area. When you step into this home, you will be greeted by the living room that leads seamlessly into the kitchen featuring a bar height seating area, stainless steel appliances, and white soft-close cabinets. The first floor also features a full bathroom with a shower-tub combination and a bonus space that’s perfect for a home office, lounge room, or game room—the possibilities are endless. The second level features the secondary bedroom and primary bedroom with a walk-in closet and ensuite bathroom with a vanity sink and walk-in shower. Whole house split air conditioning and modern appliances including a range/oven, micro-hood, dishwasher, refrigerator, and washer/dryer allow for ease of living.
This unit is being initially offered for sale to owner-occupants pursuant to HRS 514B-96. Owner-occupant affidavits are required and are available at the Ho‘opili Pohaku Estates Sales Center.


