【今日の編集部ピックアップ物件】
ハワイ不動産の売り出し中のコンドミニアムや別荘を毎日ご紹介している「ハワイに住むネット」編集部。
今日ご紹介するのは、風光明媚なハワイカイマリーナの最北東部に位置するゲーティッドコミュニティ、マリーナズコーブベイクラブの中の物件です。マリーナズコーブベイクラブは410戸の邸宅がならぶ大きなコミュニティで、そのうちの94戸は直接マリーナに面した、ハワイらしいウォーターフロントのライフスタイルを楽しむためには、またとないエリアに位置しています。コミュニティ内にある、121名まで収容可能なコミュニティクラブハウス、大きな競泳プール、子供用のプール、ボート進水路、ボートヤード(ボート庫)、マリーナへのアクセスを利用して、ここに暮らす住人のだれもがマリーナライフを満喫できるのです。

7137 Kamilo Street
4ベッドルーム&3バスルーム $1,099,000
この邸宅はマリーナに面した物件ではありませんが、庭にプールやジャクジーを備えているので、ハワイの別荘に申し分のないつくりです。

2階のラナイから、プール越しにココヘッドが一望できる素晴らしいロケーション。ワイキキやカカアコのモダンライフも良いですが、こんな邸宅もハワイらしくて癒されますね〜。

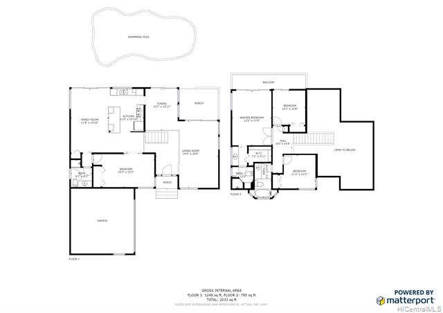
こちらは、この邸宅のお部屋の間取り図です。リビングルームの天井が吹き抜けのようになって開放的なんだ!とか、マスターベッドルームが2階にあるとか、車庫が大きい!とかいうことがわかって、イマジネーション刺激されますね。

イマジネーション刺激されるといえばこちらもそうです。まずはプールが見える庭に設えられたパティオから、ダイニング&キッチン、ベッドルーム、リビングルームを、家具のない状態でご覧ください。




そして、こちらが家具が入った状態。
なにもなかったパティオが、ステキな憩いのスペースになることがわかりますね。

ダイニングもインテリアひとつでだいぶ変わりすよね。

ベッドが入ってベッドルームの広さや天井の高さもよくわかります。

そして、なんといってもリビングルームのラグジュアリー感がすごい!家具でステージングされていないと、なかなか伝わらない、このお家のステキさが、よく伝わります。ちなみに、このインテリアは全てデジタルでステージングされたものです。

このクラスのステキ物件が、1.09ミリオン。好みのわかれるところですが、カカアコの新築コンドミニアムならば1ベッドルームの価格で、ゆったりとした暮らしが実現します。家族や会社の別荘にしたり、この写真を参考に物件に磨きをかけて、さらに良い投資物件に生まれ変わらせてみてはいかがでしょうか?
この物件の詳細はこちらからどうぞ!>>
(*リンク先が表示されない場合、売約済またはステータス変更が考えられます)
※こちらの情報は2019年9月25日現在の売り出し中物件の情報です。物件情報は常に変わる可能性があります。


